Công trình gồm 5 khối nhà tách biệt đem tới bầu không khí trong lành và nhiều khoảng trống làm vườn cây.

Công trình mới của nhóm KTS Võ Trọng Nghĩa, Masaaki Iwamoto và Kosuke Nishijima mang tên 'House for trees' (Ngôi nhà dành cho cây xanh) được hoàn thành đầu năm 2014. Nhà được xây dựng ở quận Tân Bình, TP HCM, nơi có mật độ dân cư đông đúc với nhiều ngôi nhà nhỏ chen chúc nhau.

Dựa trên ý tưởng những chậu cây xanh, khu nhà tư nhân làm trên diện tích 350 m2 được chia làm 5 lăng trụ có thể trồng được cây xanh trên mái.

Khoảng đất trống giữa các khối nhà được tận dụng làm thành những khu vườn nhỏ.

Không khí trong lành, mát mẻ là nơi làm việc, nghỉ ngơi lý tưởng trong thành phố.

Cây xanh trồng trên mái và cách bố trí các lăng trụ giúp cho 5 khối nhà đều có thể mở cửa sổ, vốn là vấn đề nan giải với những căn nhà ở các khu đông dân cư.

Phần sân giữa nhà rộng rãi giúp việc đi lại thuận tiện.

Nhờ bóng đổ của các khối nhà bao quanh, đường đi và sân luôn mát mẻ, thoáng khí.

Nhìn từ trên cao, ngôi nhà nổi bật với vườn cây trên mái giữa bạt ngàn các loại mái tôn, thùng nước.

Việc giao lưu, liên hệ giữa các phòng thuận tiện.

Vào buổi tối, chủ nhà có thể thư giãn ngoài sân hoặc mở các cánh cửa lớn để gió trời mát mẻ của Sài Gòn tràn vào nhà.

Cửa ra vào, mở ra sân chung hay cửa sổ được thiết kế đơn giản, tối đa hóa sự thông thoáng cho mọi phòng.

Từ cửa sổ của các phòng, bạn có thể nhìn thấy những khoảng xanh dịu mát.


Mặt cắt của khu nhà.

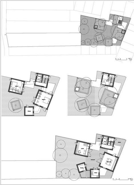
Bài trí các phòng bên trong 5 khối lăng trụ.

Công trình mới của nhóm KTS Võ Trọng Nghĩa, Masaaki Iwamoto và Kosuke Nishijima mang tên 'House for trees' (Ngôi nhà dành cho cây xanh) được hoàn thành đầu năm 2014. Nhà được xây dựng ở quận Tân Bình, TP HCM, nơi có mật độ dân cư đông đúc với nhiều ngôi nhà nhỏ chen chúc nhau.

Dựa trên ý tưởng những chậu cây xanh, khu nhà tư nhân làm trên diện tích 350 m2 được chia làm 5 lăng trụ có thể trồng được cây xanh trên mái.

Khoảng đất trống giữa các khối nhà được tận dụng làm thành những khu vườn nhỏ.

Không khí trong lành, mát mẻ là nơi làm việc, nghỉ ngơi lý tưởng trong thành phố.

Cây xanh trồng trên mái và cách bố trí các lăng trụ giúp cho 5 khối nhà đều có thể mở cửa sổ, vốn là vấn đề nan giải với những căn nhà ở các khu đông dân cư.

Phần sân giữa nhà rộng rãi giúp việc đi lại thuận tiện.

Nhờ bóng đổ của các khối nhà bao quanh, đường đi và sân luôn mát mẻ, thoáng khí.

Nhìn từ trên cao, ngôi nhà nổi bật với vườn cây trên mái giữa bạt ngàn các loại mái tôn, thùng nước.

Việc giao lưu, liên hệ giữa các phòng thuận tiện.

Vào buổi tối, chủ nhà có thể thư giãn ngoài sân hoặc mở các cánh cửa lớn để gió trời mát mẻ của Sài Gòn tràn vào nhà.

Cửa ra vào, mở ra sân chung hay cửa sổ được thiết kế đơn giản, tối đa hóa sự thông thoáng cho mọi phòng.

Từ cửa sổ của các phòng, bạn có thể nhìn thấy những khoảng xanh dịu mát.


Mặt cắt của khu nhà.

Bài trí các phòng bên trong 5 khối lăng trụ.
nhacunhamoi.com - Theo VnExpress
















